Home
Contact Details

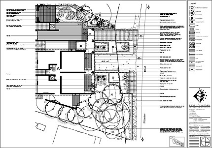
PR01. Project Development, Mona Vale, Sydney, Australia

Stage 1 - Initial concept & use of spaces

Stage 2 - Masterplan to co-ordinate with Architectural detail & Hydraulic Engineering.

Stage 3 - Coloured presentation of entry & central courtyard design treatment.

Stage 4 - Co-ordination with Architects to show overall design impression.

Stage 5 - Final presentation showing location, setting & streetscape treatment.

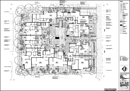
PR02. Project Development, Bayview, Sydney, Australia

Stage 1 - Initial concept showing building envelopes & external spaces.

Stage 2 - Assess Circulation Planning Controls

Stage 3 - Assess Built Area Planning Controls

Stage 4 - Masterplan & overall landscape treatment.

Stage 5 - Design detail

PR03. Project Development, Dee Why, Sydney, Australia

Stage 1 - Masterplan

Stage 2 - Design development assessing interaction between internal & external spaces.

Stage 3 - Details floor plan / garden layout shows relationship between internal & external spaces.

Stage 4 - 3D rendering showing stepped planters connecting to the basement carpark to provide light & natural ventilation.

Stage 5 - Final materials schedule prepared by Architect's to demonstarte architectural language & proposed landscape treatment.

PR04. Private School, Terry Hills, Sydney, Australia

Stage 1 - Architect's initial design sketches indicating spacial relationships. (Staab Arkitkton, Germany).

Stage 2 - Three dimensional spacial relationships too existing site levels.

Stage 3 - Architect's detailed design development.

Stage 4 - Architects indicative courtyard treatments.

Stage 5 - Landscape proposal formulated to repond to specific architectural language of school building.

PR05. , Sydney, Australia

Stage 1 - Initial Concept
text text text text text text text text text text text text text text text text text text text text text text text text text text text text text text text text text text text text text text text text text text text text text text text text text text text text text text text text text text text text text text text text text text text text text text text text text

Stage 2 - Master Plan
text text text text text text text text text text text text text text text text text text text text text text text text text text text text text text text text text text text text text text text text text text text text text text text text text text text text text text text text text text text text text text text text text text text text text text text text text

Stage 3 - Coloured Presentation
text text text text text text text text text text text text text text text text text text text text text text text text text text text text text text text text text text text text text text text text text text text text text text text text text text text text text text text text text text text text text text text text text text text text text text text text text

Stage 4 - Coordination with Architects
text text text text text text text text text text text text text text text text text text text text text text text text text text text text text text text text text text text text text text text text text text text text text text text text text text text text text text text text text text text text text text text text text text text text text text text text text

Stage 5 - Final Presentation
text text text text text text text text text text text text text text text text text text text text text text text text text text text text text text text text text text text text text text text text text text text text text text text text text text text text text text text text text text text text text text text text text text text text text text text text text